menu
Home
Liegenschaft
Geschäftslokale
Büroräume
Wohnungen
Wohnungen im 1. OG
Top 11
Top 12
Top 13
Top 14
Top 15
---
Wohnungen im 2. OG
Top 16
Top 18
Top 19
Top 20
Top 21
Top 22
Kontakt
Lage
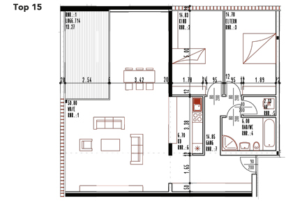
Wohnung | TOP 15 | 1. OG | vermietet
Badezimmer | WC
6,08
m
2
Eltern
14,78
m
2
Kind
14,83
m
2
Wohnen | Essen
50,80
m
2
Kochen
6,70
m
2
Arbeiten
2,13
m
2
Gang
14,85
m
2
Wohnfläche gesamt
110,17
m
2
Loggia 1
13,27
m
2
template-joomspirit.com
Back to top