menu
Home
Liegenschaft
Geschäftslokale
Büroräume
Wohnungen
Wohnungen im 1. OG
Top 11
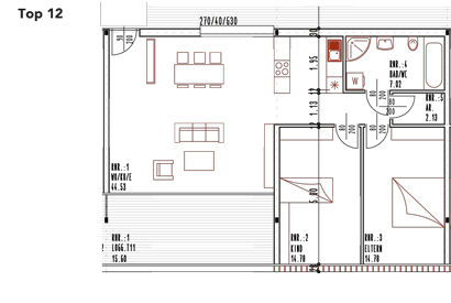
Top 12
Top 13
Top 14
Top 15
Wohnungen im 2. OG
Top 16
Top 18
Top 19
Top 20
Top 21
Top 22
Kontakt
Lage
Wohnung | TOP 12 | 1. OG | vermietet
Badezimmer | WC
7,02
m
2
Eltern
14,78
m
2
Kind
14,78
m
2
Wohnen | Essen | Kochen
44,53
m
2
Arbeiten
2,13
m
2
Wohnfläche gesamt
83,24
m
2
Loggia 1
15,60
m
2
template-joomspirit.com
Back to top