menu
Home
Liegenschaft
Geschäftslokale
Top 1 * Hundefrisör
Top 2 * Naturtierladen
Top 3 * Bank
Top 4 * Café
Top 5 * Wellness
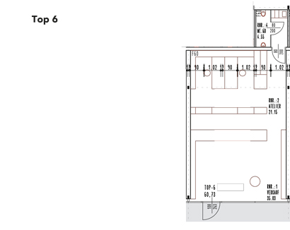
Top 6 * Goldschmiede
Top 7 * Friseur
Büroräume
Wohnungen
Kontakt
Lage
Geschäftsfläche | TOP 6
template-joomspirit.com
Back to top